Page suivante
Page précédente
Camaret-sur-Mer (29570)

Maison 3 pièce(s) 2 chambre(s) 103.14 m²

1
373 m²
1
353 600 €
Réf 251-307

Au bout d'une rue très calme, cette maison tout juste sortie de terre combine modernité, confort et emplacement privilégié à proximité immédiate du port. Un bien rare à découvrir sans tarder ! Au rez-de-chaussée, vous profitez d’une spacieuse pièce à vivre baignée de lumière donnant sur terrasse, avec une cuisine équipée et aménagée ouverte sur le séjour. Deux chambres confortables, une salle de bain moderne, et des rangements viennent compléter ce niveau. À l’étage, une mezzanine lumineuse offre un espace modulable selon vos envies et pour profiter de la jolie vue dégagée sur la mer. Une annexe vient completer ce bien pour un espace de rangement supplémentaire.


Zone soumise à une obligation légale de débroussaillement.

Bilan énergétique

Diagnostics énergetiques
A propos de ce bien Caractéristiques de ce bien
  • Surface 103,14 m²
  • terrain 373 m²
  • séjour 43 m²
  • 2 chambre(s)
  • 1 salle(s) d'eau
  • construit en 2025
  • Chauffage individuel : au sol (autre)
  • 1 garage(s)
  • 2 niveau(x)
  • accès handicapé

Composition

Composition de ce bien

Rez-de-chaussée

  • chambre 12.22 m²
  • cellier 5.95 m²
  • salle d'eau 4.92 m²
  • Dégagement 5.52 m²
  • WC 1.95 m²
  • salon/sejour 43.69 m²
  • chambre 11.15 m²
  • garage 14.96 m²

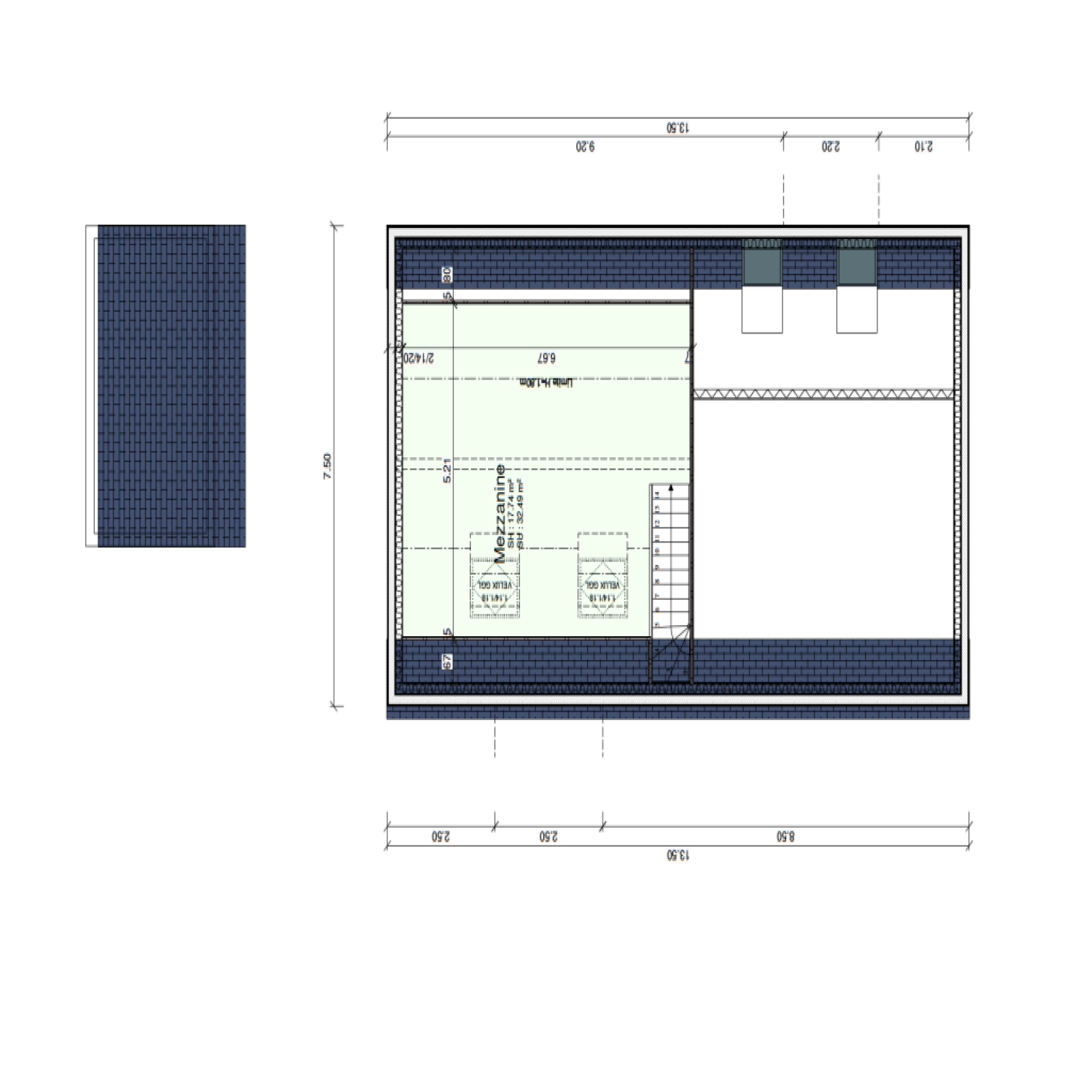
Etage 1

  • mezzanine 17.74 m²

Financier

Informations financières
Prix de vente honoraires TTC inclus 353 600 €
Prix net vendeur 340 000 €
Prix de vente honoraires TTC exclus 340 000 €
Honoraires TTC à la charge acquéreur 4 %

Simulation

Calcul des mensualités
* Champs obligatoires
La Pointe de l'Immobilier Agence